Espace propriétaire
fr

Votre recherche

Exclusivité
Prix en baisse
Bayonne (64100)

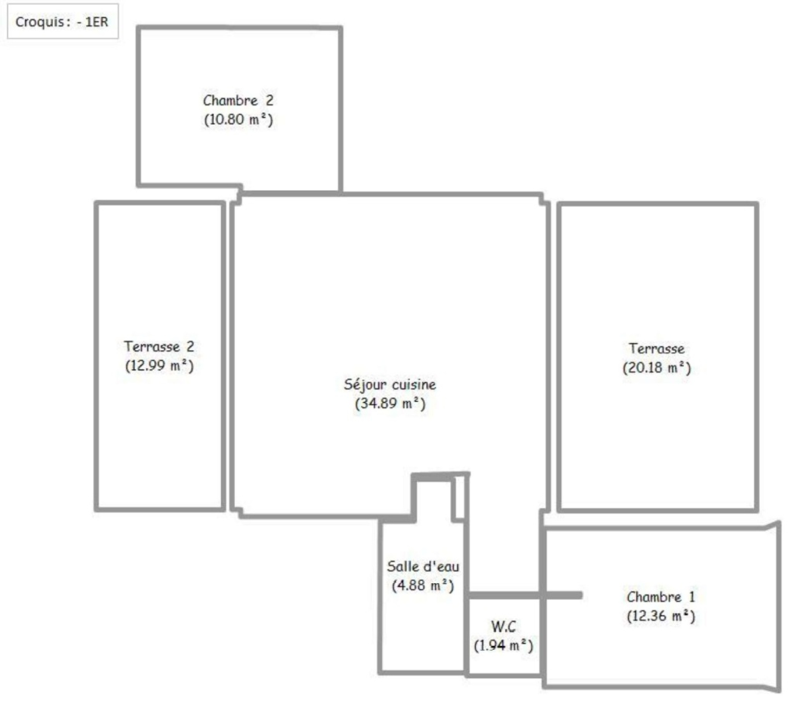
3 pièces - 64,87 m²

T3 traversant 64,87m² avec double terrasse, 2 parking, 1er étage / Quartier Séqué

299 000 €
Ref : AVAP170000124
Découvrir le bien

Lysi Immobilier est ravi de vous présenter en exclusivité cet appartement T3 avec deux terrasses et deux parking dans une copropriété à taille humaine, résidence Ama Lurra, quartier Séqué, à proximité de toute commodités :


> 4 min du Leclerc Bayonne Nord

> 7 min de l’autoroute A63

> 15 min de la Mairie


Dans une construction récente de 2012 (DPE D), l’appartement se compose ainsi :


+ Salon de 35m² avec cuisine équipée
Équipements cuisines : rangements, plaques, hotte, évier, frigo, four et micro-ondes, avec une sortie d’eau pour lave-vaisselle
Ilot central, connexion Fibre Optique, 2 ouvertures pour accéder aux 2 terrasses
Exposition Ouest / Est


+ 2 chambres de 11 et 12m², non mitoyennes, avec rangements et placards intégrés (penderie et étagères inclues), avec prise fibre optique également


+ Salle de bain, décorée avec goût, de 5m² environ avec douche à l’italienne, et sortie d'eau pour lave-linge


+ WC indépendant


+ Deux grandes terrasses complètent ce bien, de 20m² et 13m², permettant de véritables lieux de vie selon la météo et l’heure de la journée, en plus d’un grand rangement pour les objets encombrants (vélos, planche de surf, poussette, etc.)


Le tout pour 64,87m², et 98m² en incluant les terrasses.


+ En sus, 2 parkings, aérien et evergreen, sont inclus dans le prix.


DPE C / GES D


Taxe Foncière 2024 : 1 092€


Résidence sécurisée, à taille humaine, sur 2 étages, avec ascenseur et seulement 18 copropriétaires dans le bâtiment (43 logements répartis sur la résidence de 3 batiments)

Charges syndic à l’année : 1 280€ (fonds de travaux Alur inclus)
Terrasses bâtiments refaites en 2022
Réfection étanchéité du toit payé et refait en 2025
Travaux soutènement talus payé et refait en 2025


La résidence se situe Quartier Séqué :

Écoquartier entièrement pensé et aménagé avec une démarche AEU (Approche Environnementale de l’Urbanisme), pour valoriser le paysage et la biodiversité.
Le quartier s’inscrit dans son environnement, bordé d’espaces verts, pour préserver la forêt et certains arbres centenaires qui la composent.


A taille humaine, le café associatif dynamise la vie locale avec des prestations durables comme un potager collectif, des marchés avec des produits locaux, vide-greniers, des évènements réguliers et gratuits (avec théâtre, conférences, etc.) et des ateliers (jardinage, sport, langue, etc.).


En résumé, un appartement atypique avec ses larges terrasses et son agencement, dans un quartier avec des valeurs humaines et environnementales, à visiter pour confirmer son potentiel certain.


Prix de vente : 299 000€ honoraires d’agence TTC inclus,

Commission à la charge du vendeur de 14 950 €.

Pour toute information et demande de visite, veuillez contacter : M. Cyril PETETIN SIREN : 821 398 690

Agent mandataire sous la carte transaction numéro CPI82012022000000013
Réseau LYSI Immobilier
130 chemin de la Boissonnade
82000 Montauban
Activité assurée en RC auprès de MMA sous le numéro 148331349.

- Annonce rédigée et publiée par un Agent Mandataire -

Référence : 146
Bien en copropriété.
Honoraires d'agence de 5% à la charge du vendeur

TRAD_ZEPHYR_Caracteristique TRAD_ZEPHYR_Valeurs
Code postal 64100
Surface habitable (m²) 64,87 m²
Surface loi Carrez (m²) 23,16 m²
Nombre de chambre(s) 2
Nombre de pièces 3
Etage 1
Ascenseur OUI
TRAD_ZEPHYR_Caracteristique TRAD_ZEPHYR_Valeurs
Nb de salle de bains 1
Cuisine Américaine
Type de cuisine Equipée
Balcon NON
Terrasse OUI
Murs mitoyens 1
Cave NON
Nombre de parking 2
Exposition Est-Ouest
Année de construction 2012
Terrain arboré OUI
TRAD_ZEPHYR_Caracteristique TRAD_ZEPHYR_Valeurs
Copropriété OUI
Lot n° 12, 75, 94
nombre de lots 3
Quote Part annuelle des charges 1 280 €
plan de sauvegarde NON
statut du syndic pas de procédure en cours
TRAD_ZEPHYR_Caracteristique TRAD_ZEPHYR_Valeurs
Prix de vente honoraires TTC inclus 299 000 €
Etage 1
chambre 12.36 m²

chambre 10.80 m²

salon/sejour 34.89 m²

salle de bain 4.88 m²

cuisine

balcon 12.99 m²

terrasse 20.18 m²

DPE GES
Contacter pour ce bien
L'agence
Téléphone 0671979064
Adresse
18 Rue Benoit SOURIGUES 64100 Bayonne

* Champ obligatoire

Les informations recueillies sur ce formulaire sont enregistrées dans un fichier informatisé par La Boite Immo agissant comme Sous-traitant du traitement pour la gestion de la clientèle/prospects de l'Agence / du Réseau qui reste Responsable du Traitement de vos Données personnelles.
La base légale du traitement repose sur l’intérêt légitime de l'Agence / du Réseau.
Elles sont conservées jusqu'à demande de suppression et sont destinées à l'Agence / au Réseau.
Conformément à la loi « informatique et libertés », vous pouvez exercer votre droit d'accès aux données vous concernant et les faire rectifier en contactant l'Agence / le Réseau.
Si vous estimez, après avoir contacté l'Agence / le Réseau, que vos droits « Informatique et Libertés » ne sont pas respectés, vous pouvez adresser une réclamation à la CNIL.
Nous vous informons de l’existence de la liste d'opposition au démarchage téléphonique « Bloctel », sur laquelle vous pouvez vous inscrire ici : https://www.bloctel.gouv.fr 
Dans le cadre de la protection des Données personnelles, nous vous invitons à ne pas inscrire de Données sensibles dans le champ de saisie libre
Ce site est protégé par reCAPTCHA, les Politiques de Confidentialité et les Conditions d'Utilisation de Google s'appliquent.

Découvrir nos outils