Voir le bien

La Grande-Motte
(34280)
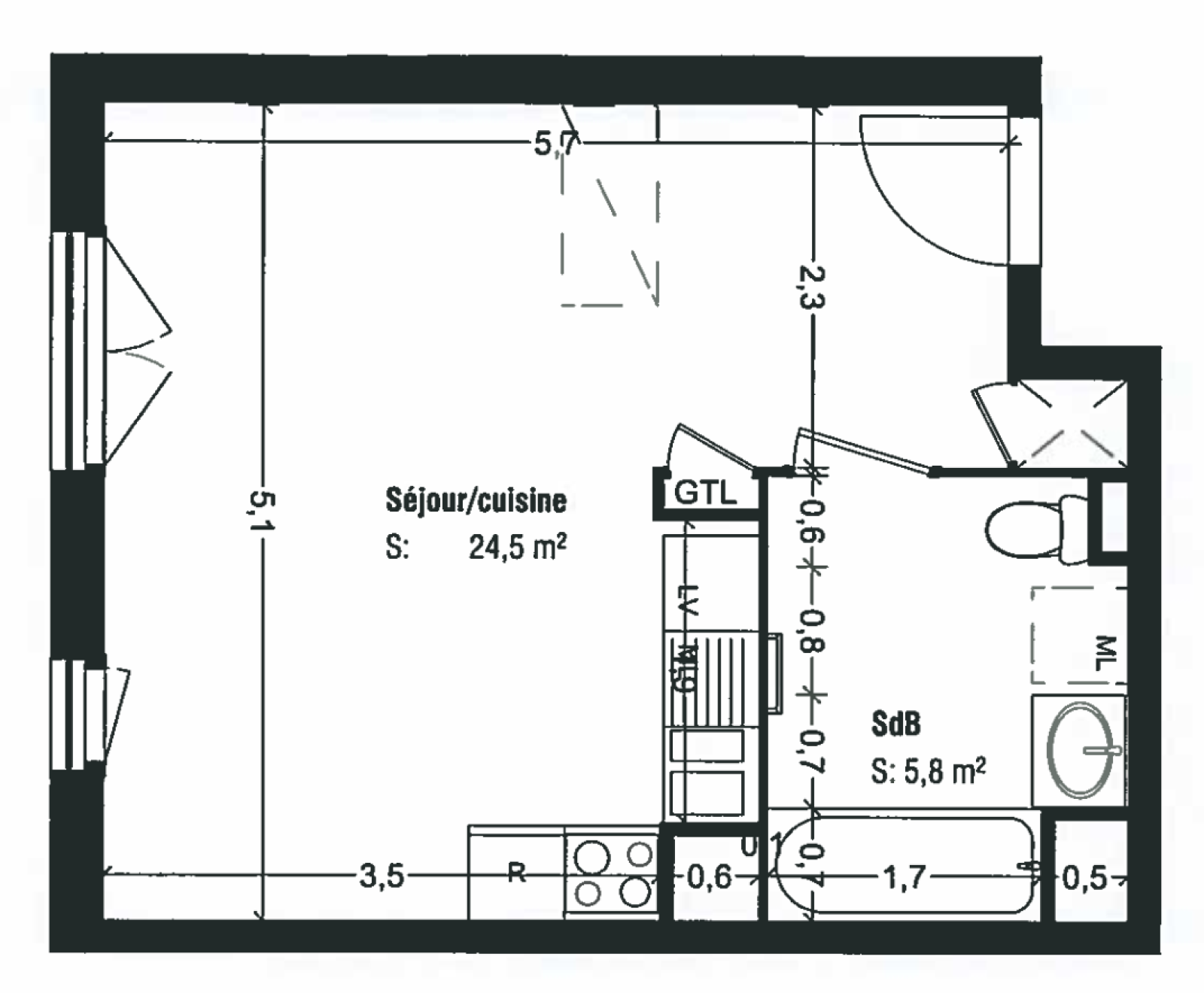
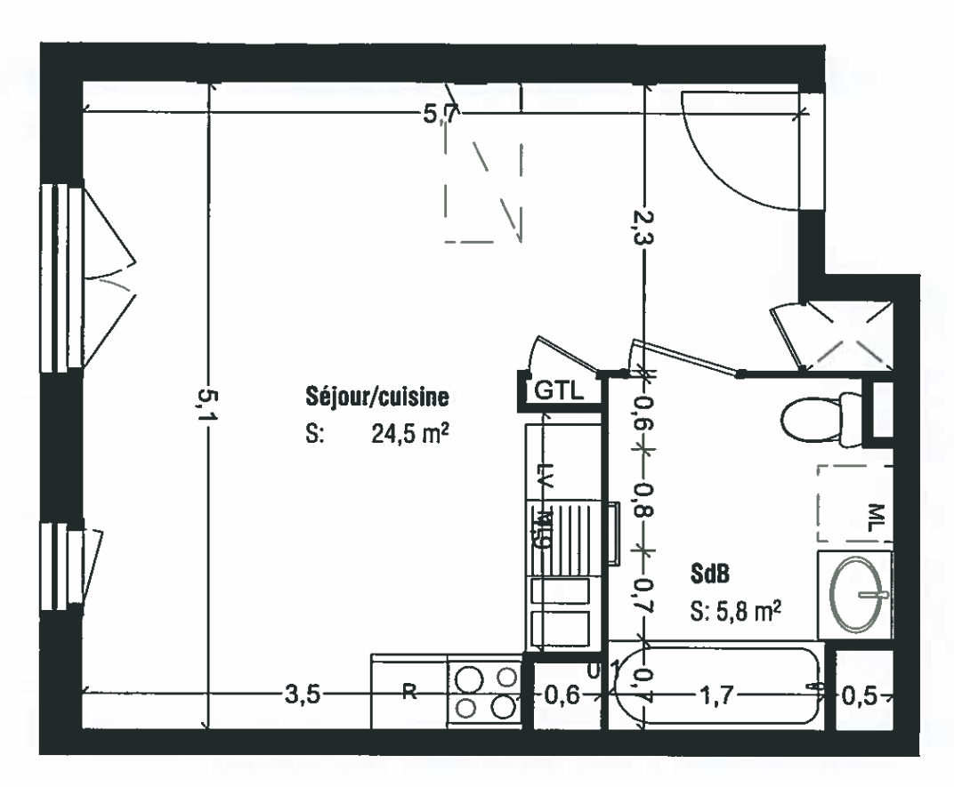
1 pièces - 18 m²
Studio rénové – Forte rentabilité – Emplacement premium
105 000 €
Ref : BGVST30000012
Coup de coeur
Voir le bien